Casa semindipendente in vendita

Rive, Via Quattro Novembre
€ 119.000
Prezzo aggiornato
9 locali 9 locali
350 Mq 350 Mq
2 bagni 2 bagni

Casa semindipendente in vendita

Rive, Via Quattro Novembre

Descrizione annuncio

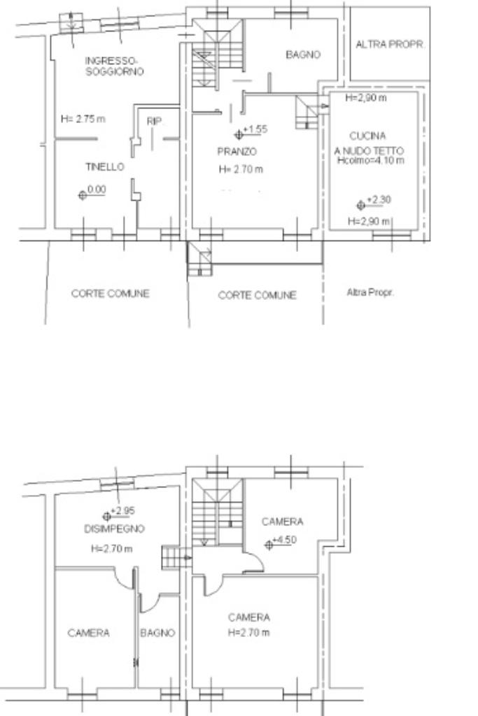
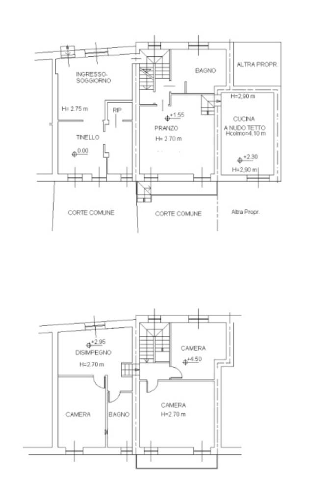
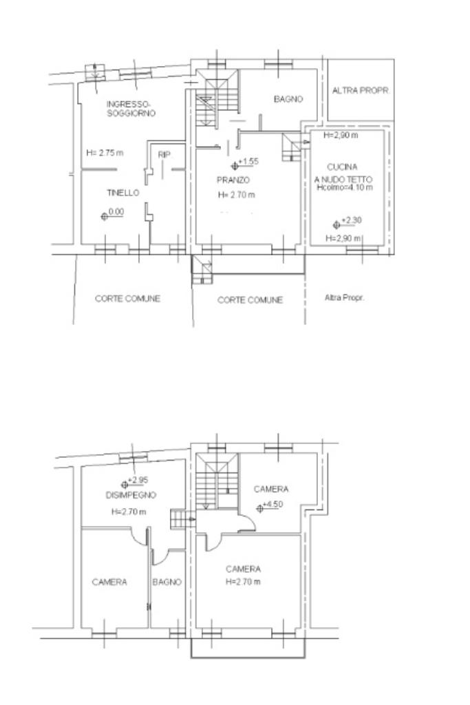
A pochissimi chilometri da Vercelli e Casale Monferrato, proponiamo soluzione semindipendente con giardino privato e due comodi box auto interni, ideale per chi cerca spazi generosi in posizione strategica.

L’abitazione si sviluppa su più livelli, offrendo grande versatilità nella gestione degli ambienti. Attraversando il cortile si accede alla scala che conduce al piano rialzato, dove troviamo un ampio soggiorno e una cucina abitabile, spazi ben distinti che compongono la zona giorno. Sullo stesso livello sono presenti un bagno spazioso e l’accesso alla cantina al piano interrato.

Salendo al primo piano si sviluppa la zona notte, composta da tre camere da letto, un ulteriore locale soggiorno/studio e un bagno comodo a servizio del piano.

Completa la proprietà un fabbricato accessorio da ristrutturare, composto da due locali attualmente adibiti a deposito, perfetto come dependance, laboratorio o spazio hobby. Inclusa inoltre un’ulteriore piccola unità su due livelli con bagno al piano terra, già compresa nel prezzo richiesto.

La soluzione dispone di due box auto, di cui uno di ampia metratura adatto a due vetture.

Un’ottima opportunità per chi necessita di ampi spazi, pertinenze e collegamenti comodi verso i principali centri della zona.

Mostra tutto

Nelle vicinanze

Trasporto pubblico Trasporto pubblico
Trasporto pubblico
50 m
Farmacia Farmacia
Farmacia
40 m
Ristoranti Ristoranti
Bar Ristorante Pizzeria La Botte
2,3 Km
Mostra tutto

Caratteristiche

Rif.:
61171173
Piano:
Su più livelli di 2
Totale piani:
2
Box:
2
Posti auto:
2
Balconi:
1
Mostra tutto
Prezzo Prezzo
€ 119.000
Rata mutuo Rata mutuo
€ 565 / mese
Spese annue Spese annue
€ 0
Proponi il tuo prezzoProponi il tuo prezzo

Classe Energetica

F
F
F
F
F
F
F
F
F
Anno di costruzione:
1967
Riscaldamento:
Autonomo
Tipo impianto:
A radiatori
Tipo alimentazione:
Metano

Prezzo ridotto di €1 (8%%)

Ti interessa visionare l'immobile?

Fissa un appuntamento  Fissa un appuntamento

Richiedi informazioni

Clicca su Leggi per aprire l'informativa
* Questi campi sono obbligatori

Calcola il tuo mutuo

Semplice e senza impegno
Anticipo

( % )
Mutuo

( % )

pochi semplici passi

inserisci i tuoi dati
Questionario completato
Grazie per aver richiesto un appuntamento senza impegno con un nostro Consulente del Credito e Assicurativo.

Hai inserito correttamente tutti i dati necessari e a breve riceverai una e-mail con un link da convalidare per inviare i tuoi dati.
Affiliato
Studio Vercelli Uno Sas
Corso Giuseppe Garibaldi, 27 13100 Vercelli (VC)

Il nostro staff


  • Simone Luigi Cardillo
    Collaboratore

  • Camilla Gauna
    Coordinatrice

  • Gabriele Passannante
    Collaboratore

  • Edoardo Viscito
    Affiliato
Corso Giuseppe Garibaldi, 27 13100 Vercelli (VC)
Zona: Vercelli
Mostra su mappa
Affiliato
Studio Vercelli Uno Sas
Corso Giuseppe Garibaldi, 27 13100 Vercelli (VC)

2026 Tecnocasa Franchising S.p.A. - P. IVA 08365160152 - Via Monte Bianco 60/A 20089 Rozzano (MI). Ogni agenzia ha un proprio titolare ed è autonoma. Privacy policy | Policy utilizzo | Cookie policy